The Platz is the unique venue at COEX where natural lighting adds value to the space. By utilizing the city view seen through the 30-meter-long window on the southwest and the natural lighting that enhances the visual appeal of the space, the venue effectively delivers the purpose of the event and is not limited by lighting.
| Room | Size | Ceiling Height | Usable Area | Capacities | |||||
|---|---|---|---|---|---|---|---|---|---|
| m | ft | m | ft | m² | ft² | Lecture type |
Theater type |
Banquet type |
|
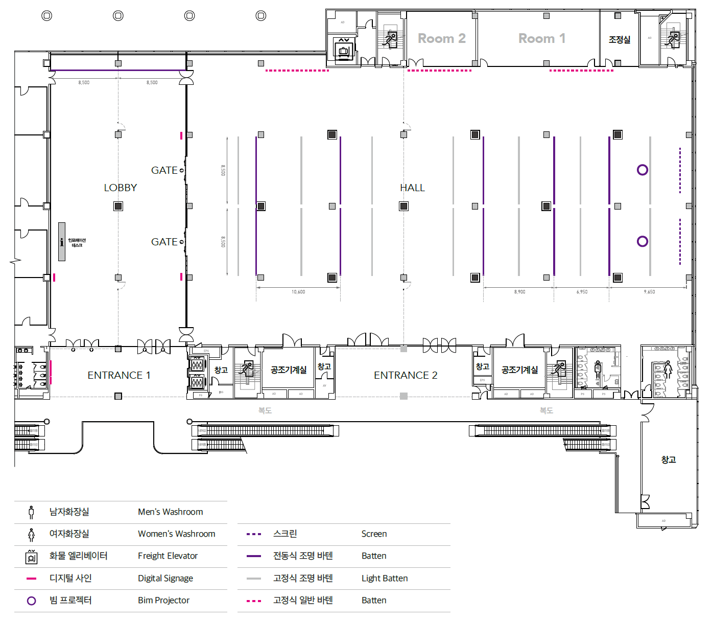
| The Platz | 63×35.3x4.5 | 206.7x115.8x14.7 | 3.5~5.2 | 11.5~17.1 | 2,224 | 23,939 | 114 booths / 1,500 | ||
| Room 1 | 15x6.5 | 49.2x21.3 | 87.5 | 942 | |||||
| Room 2 | 9x6.5 | 29.5x21.3 | 58.7 | 632 | |||||
| Lobby | 18×35.4 | 59x116 | 636.8 | 6,854 | |||||






